Dürrröhrsdorf-Dittersbach-OT Wilschdorf:
KLEIN, ABER OHO: UNSER DURCHDACHTES DESIGNHAUS
Objekt-Nr.: PV-D9.2-01.04..2025-003

Ansicht Garten

Ansicht Garten

Ansicht Garten

Ansicht Garten

Ansicht Garten

Ansicht Eingang

Ansicht Eingang

Ansicht Eingang

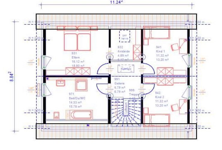
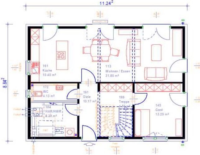
Grundriss Erdgeschoss

Grundriss Dachgeschoss










Preis:
444.400 €
Wohnfläche ca.:
106 m²
Grundstück ca.:
554 m²
Zimmeranzahl:
5
Dieses Haus wird in der Ausbaustufe technisch fertig incl. Grundstück angeboten.
Diese Anzeige wurde auf einem realen Grundstück projektiert.
Wir bitten um Ihr Verständnis, dass nur Anfragen die Namen, Adresse, Telefonnummer und E-Mail-Adresse beinhalten, beantwortet werden.
Schlichte Eleganz gepaart mit einem durchdachten Raumkonzept - das zeichnet das Einfamilienhaus Design 9.2 aus. Die geradlinige Architektur wird noch unterstrichen durch die zweifarbige Fassadengestaltung, die dem Haus eine besondere Note verleiht und sie optisch noch einmal zusätzlich aufwertet. Geradlinig geht es auch im Inneren weiter. Herzstück im Erdgeschoss ist der große und lichtdurchflutete Wohn-Ess-Koch-Bereich mit direktem Zugang zum Garten. Dieser ist räumlich getrennt von Hauswirtschaftsraum und Gäste-WC. Von der geräumigen Diele, in der ausreichend Platz für eine Garderobe ist, führt eine Treppe ins Obergeschoss. Hier wird der Wohnraum perfekt ausgenutzt. Zwei Kinderzimmer, ein Schlafzimmer für die Eltern sowie ein geräumiges Bad mit Wanne, Dusche und WC bieten hier einen idealen Rückzugsort. Auf einer Wohnfläche von rund 107 m² ist hier ein gemütlicher und komfortabler Wohlfühlort für die ganze Familie entstanden.
Haustyp: Einfamilienhaus
Etagenanzahl: 2
Provisionspflichtig: nein
Anzahl Schlafzimmer: 3
Anzahl Badezimmer: 1
Gäste-WC: ja
Qualität der Ausstattung: gehoben
Bauphase: Haus in Planung (projektiert)
Zustand: Haus in Planung (projektiert)
Die von uns gemachten Informationen beruhen auf Angaben des Verkäufers bzw. der Verkäuferin. Für die Richtigkeit und Vollständigkeit der Angaben kann keine Gewähr bzw. Haftung übernommen werden. Ein Zwischenverkauf und Irrtümer sind vorbehalten.
Wir weisen auf unsere Allgemeinen Geschäftsbedingungen hin. Durch weitere Inanspruchnahme unserer Leistungen erklären Sie die Kenntnis und Ihr Einverständnis.
Das könnte Ihnen auch gefallen

OKAL Haus Ost
Herr Pierino Vitiello
Zur Kuhbrücke (Unger Park)11
01458 Ottendorf-Okrilla
Mobil: +49 157 82031444
Impressum
01833 Dürrröhrsdorf-Dittersbach-OT Wilschdorf
Sächsische Schweiz-Osterzgebirge
Sachsen













































