Stahnsdorf:
KLASSISCHER GRUNDRISS - GROSSZÜGIGES HAUS
Objekt-Nr.: RL2025/07/29-1


Ansicht Garten

Ansicht Garten

Ansicht Garten

Ansicht Garten

Ansicht Garten

Ansicht Garten

Ansicht Eingang

Ansicht Eingang

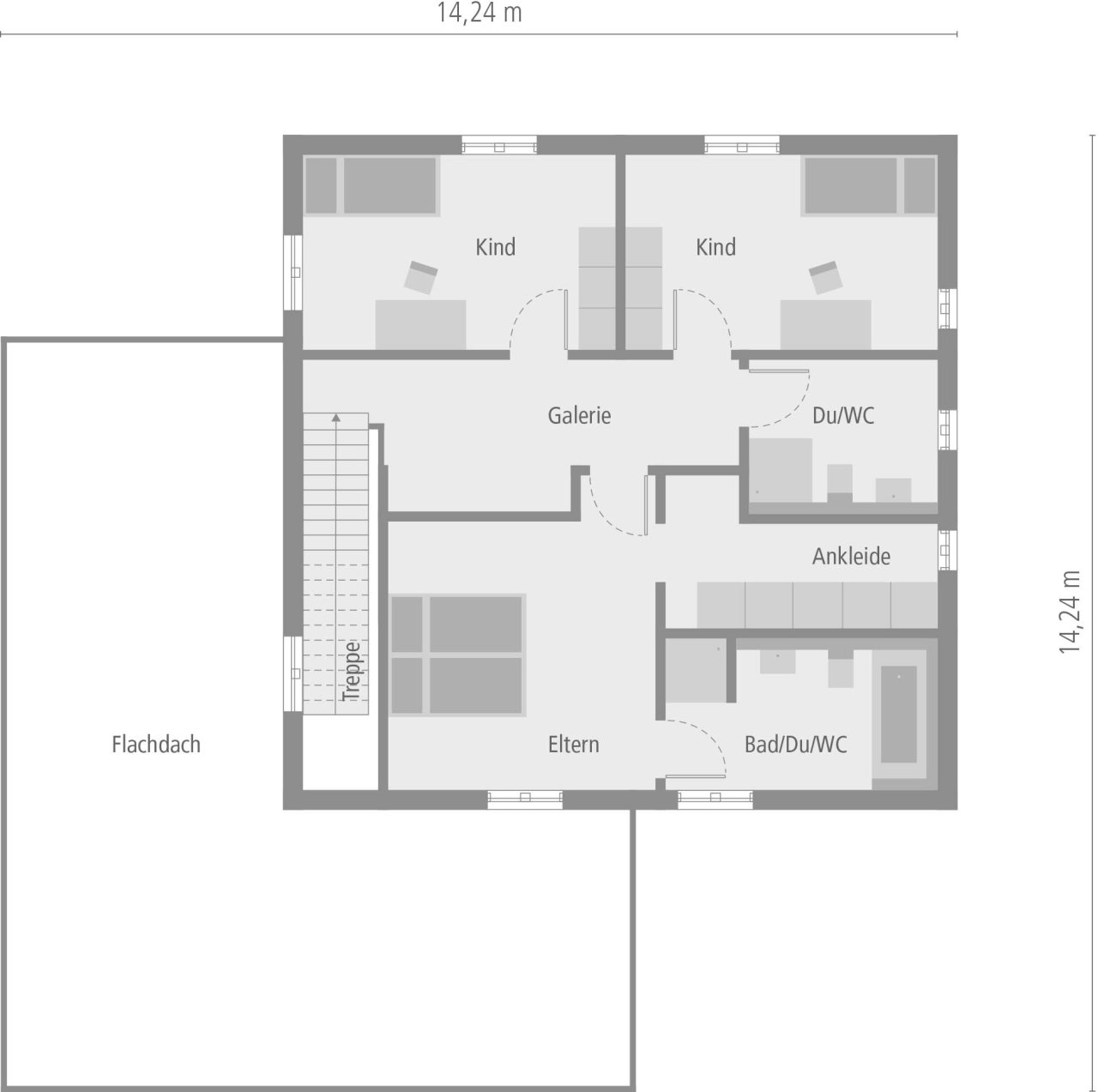
Grundriss Erdgeschoss

Grundriss Dachgeschoss













Preis:
567.900 €
Wohnfläche ca.:
161 m²
Grundstück ca.:
510 m²
Zimmeranzahl:
5
Ein echter Blickfang des Design 12 ist die Fassade, die durch ihre farbige Gestaltung zum echten Hingucker wird. Doch auch die Räume unter dem Satteldach haben auf mehr als 160 m² Wohnfläche vieles zu bieten: Von der Diele haben Sie Zugang in die Küche mit angeschlossenem Wohn-Ess-Bereich. Im Erdgeschoss führen fünf Türen nach draußen und sorgen zugleich für viel Licht. Ebenfalls auf dieser Etage: WC, Hauswirtschaftsraum sowie ein weiterer Raum, der als Gästezimmer oder Büro genutzt werden kann. Von der Diele führt auch eine Treppe ins Dachgeschoss. Hier steht den Eltern ein großes Reich mit direkt angeschlossenem Ankleidezimmer zur Verfügung, und auch für zwei Kinder ist viel Platz zum Toben, Schlafen, Spielen oder Lernen. Ein echtes Highlight: das knapp 16 m² große Badezimmer.
Haustyp: Einfamilienhaus
Etagenanzahl: 2
Provisionspflichtig: nein
Provision: 7,14% inkl. MwSt.
Anzahl Schlafzimmer: 3
Anzahl Badezimmer: 1
Gäste-WC: ja
Qualität der Ausstattung: gehoben
Bauphase: Haus in Planung (projektiert)
Zustand: Haus in Planung (projektiert)
Der Käufer hat an uns eine Provision in Höhe von 7,14% des Kaufpreises inklusive Mehrwertsteuer zu zahlen. Die Provision ist nach Abschluss des beurkundeten Kaufvertrages fällig.
Die von uns gemachten Informationen beruhen auf Angaben des Verkäufers bzw. der Verkäuferin. Für die Richtigkeit und Vollständigkeit der Angaben kann keine Gewähr bzw. Haftung übernommen werden. Ein Zwischenverkauf und Irrtümer sind vorbehalten.
Wir weisen auf unsere Allgemeinen Geschäftsbedingungen hin. Durch weitere Inanspruchnahme unserer Leistungen erklären Sie die Kenntnis und Ihr Einverständnis.
Das könnte Ihnen auch gefallen
DAS OKAL - LANDHAUS MIT BESONDEREM FLAIR
EIN STADTHAUS MIT ZAHLREICHEN HIGHLIGHTS VON OKAL

OKAL Haus Ost
Herr Rüdiger Lange
Unger-Park3
14542 Werder (Havel)
Mobil: +49 162 7137452
Impressum






















